最新资讯
联系方式

可编程控制器在地铁车辆轴承清洗机中的应用

发布时间:2012-09-13 浏览次数:688

作者:徐贺

  摘 要:本文介绍了以西门子S7-200系列可编程控制器216为核心的控制系统的组成及特点和基本原理,说明了在实际应用中的一些措施和解决办法。
  关键词:地铁;车辆检修设备;轴承清洗机;PLC可编程控制器;自动控制
  1 前言
  地铁车辆滚动轴承清洗机是为德黑兰地铁客车42724QT、152724QT型轴承进行除锈、清洗的设备。它可以对轴承外圈进行除锈,采用热水溶液和清洗剂对轴承(轴承内圈清洗应在其它设备中完成)进行压力清洗、清水漂洗、热风烘干、压力油洗等工序,Z终使轴承无油污、锈迹,达到检修要求的清洁度。
  由于该设备是出口产品,因此对整机的要求比较高。尤其是对电控系统要求,体现在以下几方面:
  1.1可靠性
  必须保证设备在大修周期内无大故障,在工艺检修作业时工作稳定可靠。因此对控制方案,器件的选择与配置,抗干扰措施等均有较高要求。
  1.2人机界面友好
  要求人员是否简洁明了,Z好采用溶汇人机工程学和工业设计理念的傻瓜式人机界面。
  1.3设备的维护性
  必须提供良好的维护性能。例如快速调换器件,良好的器件及布线识别,经济而又适合的操作空间等等。
  2 轴承清洗机的工作原理
  2.1轴承清洗机的机械原理图:
  如图1所示,为轴承清洗机的机械结构原理图,包括部分外围电器件布置图。
  其基本愿理如下:
  轴承清洗机的机械结构,采用卧式机身。
  轴承清洗机的这种结构具有以下特点:
  (1)结构紧凑,减小体积。
  (2)轴承从侧面进出该机,自动工作,便于实现自动化工作线。
  (3)多工位递进,同时工作,提高了效率。
  (4)功能强大。包括手动,自动,点动等。
  (5)电气系统采用西门子公司S7—200的216为核心,西门子和法国TE等产品为外围电路。
整个系统共分为六个工位:
  ♦工位为轴承提升工位。
  ♦工位为轴承外圈除锈工位,驱动电机使刷子旋转,使刷子压到轴承外圈外表面,同时还使刷子做轴向往复运动,以清除轴承外圈污锈。
  ♦工位为洗涤剂清洗工位,喷射洗涤剂以清除油污;采用二个侧洗头同时工作。
  ♦工位为清水冲洗工位,冲洗掉轴承上的洗涤剂残留物。
  ♦工位为油洗工位,以防锈蚀。
  ♦工位为烘干工位。

  2.2气动系统动作执行原理图
  其功能包括轴承提升,除锈刷子进給和摆动,侧洗头往复进給,轴承顶出,开门等动作。如图2所示。其中采用六个顶出缸是为了使各工位的轴承有序地执行工位程序,保证彼此不发生冲突。
  如图1所示,行程开关XK1指示轴承提升的气缸到位,行程开关XK6,XK7指示开门和关门的气缸到位。


图1 轴承清洗机机械原理和外围电气件布置图

  2个侧洗头往复进給的频率为5秒1次,它的往复进給运动由行程开关XK2,XK3及XK4,XK5的位置决定。如图2所示,在气动图上它们由同一阀控制。


图2 气动原理图

  五个开关门的气缸亦由同一阀控制。
  
2.3电磁执行器件动作真值表
  其中包括喷水,喷油,喷清水的阀的电磁铁,轴承提升,除锈刷子进給和摆动,侧洗头往复进給,轴承顶出,开门等气动阀的控制电磁铁等的动作真值。如图3所示。


图3 电磁铁动作真值表
 

  2.4电执行器件动作逻辑图
  其中包括整个轴承清洗的工艺过程,诸如洗涤液温度,喷水,喷油,喷清水的阀的电磁铁,轴承提升,除锈刷子进給和摆动,侧洗头往复进給,轴承顶出,开门等气动阀的控制电磁铁等动作。如图4所示。

 
图4 电执行器件动作逻辑图
 

  3 轴承清洗机电控系统设计上的几方面措施与对策
  
3.1设备的可靠性对策
  考虑到环境的潮湿,采取如下对策:
  (1)电控柜与清洗主机相分离,杜绝水的泄漏和喷溅以防电器件受潮。
  (2)合理布局电控柜,留出合理通风空间;
  (3)在柜内加装带滤网的通风扇,加装带滤网的百叶窗等;
  (4)加强管道布线和设备连线时的防水处理;
  (5)针对现场实际,留出可变高度的走行式电控柜地脚。
  为加强系统的内在可靠性,加强了以PLC为核心的抗干扰措施。如:
  (1)带有印刷电路板的器件加装防振胶垫,电控柜地脚加防振垫;
  (2)保证PLC电控柜机和PLC本身的正确接地。单独设置专用地线;
  (3)合理排布柜内器件布局,实行强弱分离;交流与直流分离;输入与输出分离;PLC远离动力线、交流线和继电器;
  (4)加强隔离与屏蔽,在PLC电源入口处布置隔离变压器以去除常模干扰和共模干扰;采用金属网隔离等;
  (5)合理采用导线型,区别不同情况分别采用双丝线,单端接地屏蔽线等等。
  3.2关于人机界面友好的对策
  在满足功能的前提下,尽量引入工业设计的理念,以工业设计的方法和手段,使产品的形态与功能、结构和工艺以及人——机——环境达到协调统一。
  考虑到诸多相关因素,例如,机器的颜色是否对伊斯兰教徒有忌讳;电控柜外观比例、色彩是否协调等等。
  考虑到人,出口设备的人——机——环境的关系,也应做相应处理,例如:
  (1)电控柜的操作面板高度应符合伊郎等中西亚地区人的平均身高,使操作者操作便捷、不费力;
  (2)操作台面板尽量采用“傻瓜式设计”,带有各种指示和英文说明,有自动流程和手动流程的线条设计,使操作者一目了然;而其功能排序严格按照工艺流程的次序。
  (3)急停按钮放置在距其它按钮较远且醒目的地方;
  (4)电控柜的布置要既利于观察电器件的执行情况,又要方便地观察工件在设备中的情况。
  3.3关于设备的易维护性的对策
  考虑到伊朗地铁运营的实际,提高设备的易维护性尤为重要。
  (1)电控柜内设有放置调试用编程器的可拆卸托架。
  (2)电控柜内设置供照明和连接电烙铁用的插座。
  (3)经常拆卸线缆处的端子体积要大些,可靠性要高,因此选用phonix的UK系列端子,对于电磁阀的输出部分,选用UK系列带熔断器的断子。既增加了可靠性,又减少了体积。
  (4)采用线槽+导轨+背板的布线方式,方便器件的更换和临时连接调试线;同时不影响设备外观。
  (5)在电控柜外侧装设专用大连接器和主机设备相连,便于排错和运输,也便于联机调试等等。
  3.4在设计上保证一定冗余
  针对可能出现的各种问题,提出应对各种故障的方案、兼容考虑各种方案。
  其次采取相应措施,例如,配电柜内易损件处给予一定数量的备用器件,以方便现场立即更换,快速恢复到工作壮态;同时,可以设计出冗余的端子和跳线器相结合,以实现不同的控制和自检功能。在PLC上也采用调试程序和工艺运行程序相结合方式,或者更换PLC的E2PROM来实现不同的控制流程。
  3.5轴承清洗机电控的基本构成与功能
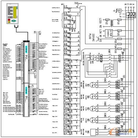
  控制系统由电气控制柜和外部电气执行元件构成。电控柜包括柜体、操作面板、配电盘、接线端子、接插件等构成。其方案一电气原理图如图5所示。


图5 方案一电气原理图

  本机采用可编程控制器S7--200系列的216加上扩展板块16入16出的6ES7-223-1PL00-OXAO和8入8出的扩展模块6ES7-223-1PH00-OXAO。采用灯H9,H11,H12编码来显示故障类型。因而故障的定位须靠使用说明书上的说明来一一对应解释。
  为保证24VDC的供电,选用西门子公司的SITOP电源,额定电流5A。如图5所示,洗涤剂泵电机采用Y—Δ启动器,由外部手动控制,其它的电机亦如此。在自动循环流程中,用电磁阀来控制相应的液流喷出或关闭。
  为抗干扰考虑,在PLC216的电源输入端采用自耦变压器来抑制来自交流电源的干扰。
  为维修方便考虑,在电控柜内安装交流220V的电源插座PLUG,供照明灯HE1电烙铁使用。
  洗涤剂泵电机,驱动电机等均采用断路器保护的方式以减少空间体积。
  上电开关S通过接触器K来供给继电器组和电磁阀组电源。
  KM1,KM7,KT1,KM8组成Y-△启动器。KT为电子式时间继电器H5CN的线圈。
  KM2─KM6为继电器线圈,1DT─14DT为电磁阀线圈。
  面板上的复位按钮RESET,用于在手动过程中,把各执行器件(包括机械执行器件)回复到初始位置。
  急停按钮EMERGENCY STOP,用于在运行过程中,紧急停止。
  面板上的三个信号灯H9、H11、H12组成故障显示器,以编码形式定位故障类型。
  灯测试旋钮SA17能在停止模式下,使所有面板上的信号灯以1秒的间隔闪烁,从而诊断灯的好坏。
  对于各电磁阀,采用RC吸收网络和压敏电阻来施过压保护。
  自动模式下的开始旋钮SA16用来开始自动流程。
  系统共有三种工作模式:由转换开关SAI实现。
  手动模式:在此模式下,按下任何一个按钮都将产生一个相对应的动作。主要是由于调试和设备维修。当然,按照操作面板上的流程指示,也可以采用手动方式完成整个工作流程。
  停止模式:在此模式下,提供系统测试功能。
  自动模式:在此模式下,系统的运行由外部输入状态信息及设定的程序所控制。此模式是本系统日常正常工作模式,在选择旋钮SAI旋到自动模式后,旋动自动启动钮SA16自动工作流程就开始,系统自动完成整个清洗机的复位,主定时时间参数输入(主定时器由人工输入后被记忆,即使掉电也可保持设定定时范围为0—10分钟)及计时,各工序流程的进行以及故障信息显示等等。一但主定时时间到,整个流程自动结束。
  方案二,如图6所示,采用文本器TD200代替信号灯H9,H11,H12来显示故障信息。仍采用电子式时间继电器来输入设定的时间参数。该方案有如下特点:


图6 方案二电气原理图
 

  (1)良好的定时器设定界面:所采用电子式时间继电器H5CN是OMRON公司的产品,计时范围0.001秒至99小时59分钟,精度为±0.005±0.03S,寿命为10×106操作,是UL和CSA认证的产品。该定时器采用BCD码拨盘,设定时简单明了;该定时器的设定参数不会因掉电而消失;同时,可在线修改定时参数。而如果采用TD200文本显示器来输入参数,并由216内部的定时器来定时,使得整个参数设定过程太复杂,对于地铁现场的操作工人而言,未免太不方便。
  (2)采用TD200文本显示器来显示信息,容量大,Z多可显示80条信息,界面直观明了;
  (3)比较方案一和方案二,可以看出,方案二节省了一个8入8出的扩展模块6ES7-223-1PH00-OXAO,而增加了一个TD200文本显示器来显示信息。从成本上来讲,略有增加。
  (4)利用TD200文本显示器还可以用它的功能实现PLC216的I/O点的诊断,从而测试PLC216的各个输入和输出的实际功能。
  (5)利用TD200文本显示器可以使用F1─F8实现不同控制方案的切换。
  (6)利用TD200文本显示器可以修改控制的过程变量,以方便设计者现场整定参数。
  3.6系统的控制软件
  本系统采用西门子公司的MicWIN STEP2.1版本,可方便地进行输入输出的定义,状态的监测与强制执行,及程序的在线仿真和参数的修改等,其主流程图如图7所示。


图7 主流程图
 

  本软件由子程序1,子程序2和子程序3等组成。
  子程序1,子程序2和子程序3的说明见软件清单的注释。
  
4 结论
  经过试验以及商检,本机的综合性能均达到了设计要求,得到了伊朗业主的认可。
  经过这次德黑兰地铁中标设备的开发设计,我们有YI以下体会:
  (1)在方案选择上,一定切合标书,有针对性地做到不漏项。
  (2)在系统功能设计上,切合标书尽量运用Z新科技成果的独到功能。
  (3)在电控器件选择上,尽可能地选择上著名公司的产品。例如,这次选用的西门子,法国TE的产品,在商检中均免检。
  参考文献:
  1.吴少洪等, PLC软元件在电气系统可靠性设计中的应用选择方案, 电工技术杂志 1999.3
  2.徐贺,设计开发德黑兰地铁车辆检修设备电控系统的思路,哈尔滨铁道科技 1999,2
  3.徐贺,在伊郎中标的德黑兰地铁自动洗车机,中国铁路,1999,No.7

服务热线:15618632192 / 15618783363
版权所有 © 上海堃旌轴承有限公司      ICP备:沪ICP备18003889号